Sublime
An inspiration engine for ideas
Margaux DVR
@margaux.dvr

Fuori e dentro. Questo é l’aspetto del Santuario della Madonna dell’archetto, quello di un tempietto neorinascimentale opera di Virginio Vespignani, inaugurato nel 1851 #Roma https://t.co/Sm0Kkq4mdH
Patrística - A verdadeira religião | O cuidado devido aos mortos - Vol. 19 (Portuguese Edition)
amazon.com
STRSPC004
Sainte-Geneviève library
Paris, France
1838—1850
Architect: Henri Labrouste (1801—1875)
Drawing: 2014, Marco Caminada, Paolo Giannachi
Source: ETH Zürich, Studio Adam Caruso
#strspc #henrilabrouste... See more
instagram.com
🌀👁💙
"What we are looking for is what is doing the looking."
—
Francis of Assisi
Image by Claude Mellan "The veil of Saint Veronica", 1649.
Using one continuous spiral line, Mellan created amazing depth and texture.
#claudemellan #icon... See more
instagram.com



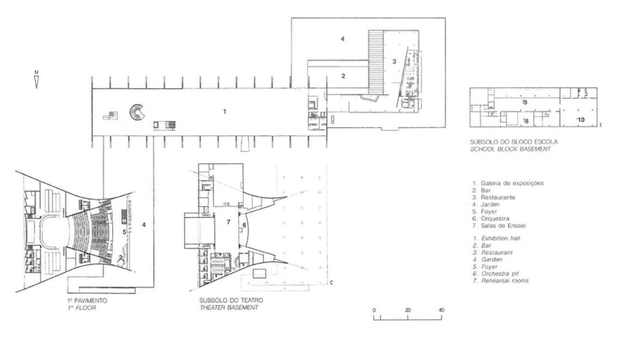
Museo de Arte Moderno, proyectado en 1953 por Affonso Eduardo Reidy en Rio de Janeiro, Brazil.
#AffonsoEduardoReidy #arquitecturamoderna https://t.co/RrPuOaL2RH



