Sublime
An inspiration engine for ideas
CSS + Quadtree.js Fine Grid
div要素のランダムなグリッドのデモ。
ただのdivでのスクロール演出も、レイアウトと数の力でいつも全く違う感じになります。
収まった瞬間と崩れる瞬間が好き。
#CSS #GRID #GSAP
https://t.co/bLWiJoEoDC https://t.co/Ui2I3ff5K2
hiro:processingerx.com
Introducing Clay - High Performance UI Layout in C
youtube.comHouse for disorder
@supraorder
.
#supraorder #grid #reticula #grella #suprahouse #modernhouse #contemporaryhome #contemporaryhouse #contemporaryarchitecture #architecturaldrawing #axonometric
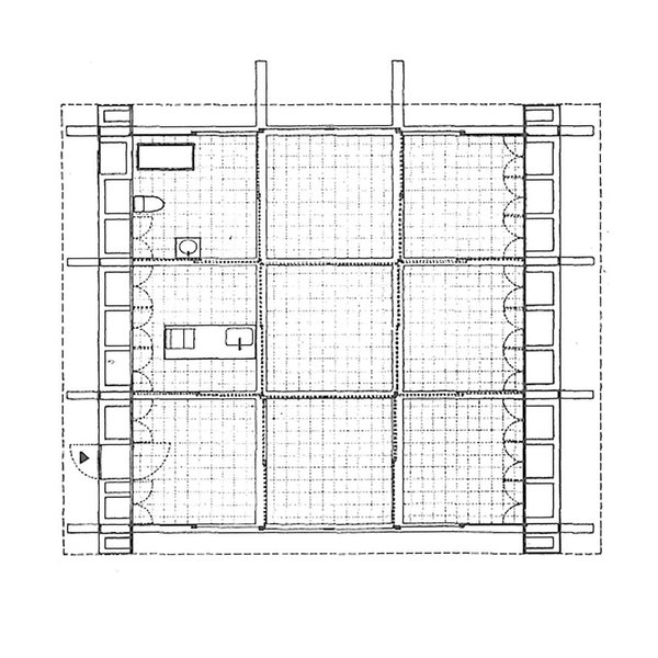
instagram.comShigeru Ban - Nine Square Grid House, Hadano, Kanagawa, Japan, 1995
#shigeruban
#shigerubanarchitects
.
•ᴡᴡᴡ.sᴜᴘʀᴀᴏʀᴅᴇʀ.ᴄᴏᴍ
.
•sᴏ sᴛʀᴀᴛᴇɢɪᴇs... See more
instagram.com










